? 鋁加工行業扁錠熱軋前的立推式鋁錠加熱爐,按供熱方式可分為兩種:一種是電加熱的熱風循環加熱爐,通過電加熱器使電能轉化成熱能來加熱鋁錠;另外一種是燃氣加熱的加熱爐,天然氣通過燃氣燒嘴燃燒生成熱能來加熱鋁錠。天然氣為一次能源,與電加熱相比,運行成本更低,更節能,越來越多的鋁加工企業選用天然氣作為鋁錠加熱爐的燃料。
? ? 由于鋁錠黑度較小,加熱主要以對流換熱為主。目前,加熱爐均采用強制熱風循環的方式加熱鋁錠,而改善爐溫和鋁錠溫度均勻性的一般方法有:①提高與鋁錠進行熱交換的高溫氣體的物理特性,如溫度均勻性、氣流速度和爐膛內風速的均勻性;②優化燒嘴的控制方式,提高爐膛溫度的控制精度。在生產實際中,通常,燒嘴采用一對一的控制手段,使燒嘴的溫控精度達到工藝要求。③改進爐子結構設計,提高循環風機風量,在爐底沿鋁錠長度方向均勻布置噴口,使得噴口處高溫氣體速度更加均勻,強制高溫氣體沿噴口方向垂直向上實現與鑄錠之間雙面平板式加熱。
? ? 隨著科技進步和鋁加工技術的發展,對于鋁合金性能要求越來越高。鋁錠加熱爐作為鋁加工的重要設備之一,其爐溫和料溫均勻性對鋁合金性能影響很大,因此進一步提高加熱爐的爐溫和料溫均勻性變得越來越迫切。
? ? 在生產實際中,燒嘴通常采用一對一的控制方式,保證燒嘴的溫控精度達到要求。提高循環風機循環風量和在爐底沿鑄錠長度方向均勻布置噴口,可以得到噴口各點速度均勻的高速氣體,從而保證鑄錠的加熱均勻性。
? ? 而對于直燃加熱的加熱爐,盡管燒嘴控溫精度和噴口風速得到保證,但是燒嘴燃燒后的高溫燃燒產物與循環爐氣(與鑄錠換熱后的低溫煙氣)之間的混合位置和角度,直接影響到煙氣溫度均勻性,導致鑄錠加熱溫度不均,是生產中急需解決的重要問題。
? ? 根據傳熱學理論,逆流熱交換效果要好于順流熱交換方式。筆者從燃燒產物與循環爐氣之間的混合角度出發,提出一種新穎的技術方案——迎風混合燃燒技術,通過改變燒嘴的安裝方式及位置,改變燃燒產物與循環爐氣之間的混合角度,旨在使燃燒產物與循環爐氣混合更為均勻,改善鋁錠溫度均勻性,降低鋁錠加熱后的溫差,進一步提高加熱質量。
? ? 迎風混合燃燒裝置結構及特點
? ? 鋁錠加熱爐迎風混合燃燒裝置,包括循環風機和燒嘴,其安裝具有如下特點:循環風機安裝在加熱爐的爐頂,燒嘴安裝在加熱爐的左右側墻上,燒嘴傾斜向上安裝(甚至水平安裝)與風機的送風通道相對,燒嘴的安裝角度與安裝區間內風道的氣流風向一致。
? ? 該鋁錠加熱爐迎風混合燃燒裝置中燒嘴為高速燒嘴,其可以保證燒嘴在循環風機出口處的高壓環境下正常燃燒,燒嘴前燃料和助燃空氣的壓力P實=P標+P爐,循環風機為高溫高壓大風量的離心式風機,配合風機分配器的使用,風量分配得更加均勻。
? ? P實----燒嘴正常工作時嘴前實際需要標定的壓力;
? ? P標----無背壓時燒嘴前標定壓力,為燒嘴所需壓力;
? ? P爐----燒嘴安裝處爐壓,可通過高溫離心風機參數和循環熱風的路徑計算出。
? ? 下面結合附圖對本燃燒裝置進一步說明:
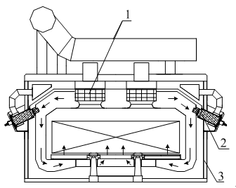
? ? 圖1:迎風混合燃燒裝置的結構剖視圖;
? ? 圖中各序號標記的含義為:1–循環風機;2–燒嘴;3–加熱爐的側墻。
?

圖1
? ? 如圖1所示,鋁錠加熱爐迎風混合燃燒裝置,包括循環風機1和燒嘴2,循環風機1安裝在加熱爐的爐頂,燒嘴安裝在加熱爐的側墻3上,左側墻和右側墻均安裝有燒嘴;燒嘴的安裝方向呈傾斜向上與風機的送風通道相對,燒嘴的安裝角度與安裝區間內風道的氣流風向保持一致。
? ? 爐子生產時,經循環風機產生的高壓氣體將燒嘴燃燒后形成的規則的火焰形狀打散,高溫燃燒產物與高壓低溫氣體迎面逆流充分混合后進入爐膛兩側的風道,混合后的氣體溫度均勻,進入爐底,并從爐底噴口高速噴出與鋁錠進行充分的熱交換。
冶金鐵路車輛現場事故救援技術研究與…
高溫液態金屬突發事故應急處理措施
鑄造車間通風除塵技術
煉鋼廠煤氣危險源(點)管理控制措施
轉爐冶煉高碳低磷鋼氧槍“氮攪”工藝…
低碳低硅鋼的冶煉實踐研究
冶煉煙氣脫汞技術進展
焊口熱處理安全措施
焊工崗位危險因素、事故防范及事故應…
乙炔氣割槍回火處理措施
焊接作業安全要求
ASM焊線機操作指導書
氬弧焊作業指導書
電烙鐵使用的注意事項
轉爐煤氣回收的安全措施
煉鐵廠冬季“四防”安全生產控制措施