???? 五更山采區運輸下山延伸段施工到位后,自運輸下山延伸段迎頭開始施工第三回風聯絡巷。為了保證施工安全順利的進行,特制定以下安全技術措施。
???? 一、施工方法
采用爆破落煤、人工裝渣、刮板輸送機運輸。
???? 二、開口位置
從運輸下山延伸段25測點(4210246.065,36379000.354,1107.213)測點向下122m處,開始施工以第三回風聯絡巷,按N=130°58′,以a=+20°坡度掘進51米至14#煤層后,再以N=40°58'方位,沿14#煤層頂板掘進19.3m到位。具體位置如圖一所示(單位:m)。
圖一:第三回風聯絡巷施工示意圖
???? 三、永久支護設計
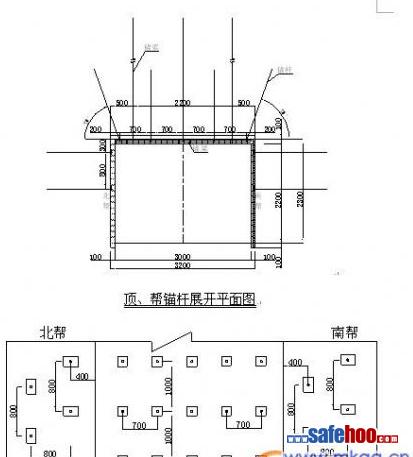
1、巷永久支護為矩形斷面,錨桿、鋼筋網、混凝土聯合支護,巷道設計掘進寬度為3200mm,巷道掘進高度為2300mm,巷道設計凈寬度為3000mm,巷道凈高度為2200mm。 混凝土噴射厚度為100 mm,混凝土標號不低于C15。
按照懸吊理論計算錨桿參數。
⑴ 頂部錨桿長度計算公式為:
L=KH+L1+ L2
式中 L——錨桿長度,m;
H——軟弱巖層厚度或冒落拱高度,m;
K——安全系數,一般取K=2;
L1——錨桿錨入穩定巖層的深度,取0.4m;
L2——錨桿在巷道中的外露長度。本規程中規定錨桿外露長度≤50mm。
L=2×H+0.4+0.05
冒落拱高度是按下式估算,即
H=
式中 B ——巷道開挖寬度,m; f ——巖石堅固性系數。
H=3.2÷2÷3=0.53
則 L=2×0.53+0.4+0.05 =1.510m
根據以上計算,選用Ф20mm,長度2200mm的左旋螺紋鋼錨桿端頭錨固可以滿足錨桿支護的要求。
⑵ 頂部錨桿的間距、排距計算:
錨桿間、排距為
a=
式中 a——錨桿的排距,m; K——安全系數,一般取2;
Q——錨桿的設計錨固力,50KN(27mpa);
γ——巖體容重;21.58~26.59KN/m3,取24.09 KN/m3。
則 a= 1.95m
根據以上計算,結合《錨桿噴射混凝土支護技術規范》規定:“錨桿間、排距小于錨桿長度的1/2”,取巷道頂部錨桿布置間、排距為1000×700mm,呈矩形布置。
⑶ 巷道兩幫錨桿的布置:
為有效控制巷道片幫,該巷道兩幫各布置兩排錨桿,錨桿為Ф16mm,長度為1600 mm的左旋螺紋鋼錨桿端頭錨固,錨桿間、排距為800×800 mm,呈三花型布置。
2、永久支護斷面圖,如圖二所示(單位:mm)
圖二:第三回風聯絡巷永久支護斷面圖

-
?
???? 四、質量要求及標準
1、保證項目
⑴ 錨 桿:頂部為Ф20mm螺紋鋼錨桿,加工長度2200mm ,端頭斜切45°角,緊固端螺紋扣長80mm;每批加工的錨桿必須經檢驗合格并具有鋼材合格證方可使用,墊板用10mm厚A3鋼板加工,規格120×120mm。
⑵ 鋼筋網:為Ф6mm鋼筋加工,網片規格3200×1000mm, 網孔規格200×150mm。焊接牢固。每片網之間必須用聯網絲聯結好,聯網絲間距200 mm。聯網絲扭結轉數不少于三圈。
⑶ 錨固劑:錨桿錨固劑為樹脂藥卷,規格為:Z2335,頂部每眼裝3只。兩幫每眼裝2只。樹脂藥卷必須有出廠合格證,無變質、破損現象。
⑷ 噴射混凝土材料;水泥、骨料、外加劑(速凝劑)的規格,性能應符合設計要求和《運輸下山延伸段作業規程》規定。
2、基本項目
⑴ 寬度:凈寬3000mm,施工中線距巷道南幫1500mm,距巷道北幫1500mm。施工中線距一幫允許誤差:合格0~+150mm,優良0~+100mm。
⑵ 高度:凈高 2200mm,合格:0~+150mm,優良:0~+100mm。
⑶ 抗拔力:錨桿抗拔力設計達到50KN。優良達到設計要求,合格達到45KN以上(錨桿拉力計型號為MLY-10T)。
⑷ 錨桿安裝: 合格:安裝牢固,托板基本緊貼壁面,不松動。優良:安裝牢固,托板緊貼壁面,不松動。
⑸ 鋼帶安裝質量:鋼帶必須緊貼鋼筋網,錨桿托板要壓緊鋼帶,使鋼筋網與頂板貼緊貼實。
⑹ 噴射混凝土厚度:100mm,合格:不小于設計值的90%,優良:全部達到設計值。
3、允許偏差項目
⑴ 錨桿間排距:允許誤差:-100~+100mm;
⑵ 金屬錨桿孔深度: 0~+50mm;
⑶ 金屬錨桿外露長度:≤50 mm;
⑷ 錨桿方向與巷道輪廓表面角度:≤15°。
⑸ 噴射混凝土的表面平整度:≤50mm。
⑹ 基礎深度:100mm,誤差≤10%。
工作面設備拆除施工組織設計及安全技…
恒寶源綜采工作面回撤拆除安全技術措施
水文技術員員崗位風險告知卡
保管員崗位風險告知卡
跟車工司機崗位風險告知卡
通風設施工崗位風險告知卡
衛生清理工崗位風險告知卡
拉力試驗工崗位風險告知卡
習慣性違章作業產生的原因、危害分析…
露天礦開采工藝
安全風險管控措施
礦井停產檢修安全技術措施
非煤礦山常見事故原因分析及防范措施
煤礦井下運輸安全技術措施
探放水設計及安全技術措施
冬季“三防”安全措施