目次
前言
IEC前言
1 范圍
2 引用標準
3 衣料試驗方法
4 成品試驗方法
前言
本標準等效采用IEC 60859:1987《用于交流800kV及以下電壓等級的帶電作業屏蔽服》,并對GB6568.2—1986《帶電作業用屏蔽服試驗方法》進行修訂。在主要技術內容上部分采用了該國際標準,在編寫格式和規則上以GB/T1.1—1993《標準化工作導則 第1單元:標準的起草表述規則 第1部分:標準編寫的基本規定》為基礎。
在等效采用IEC 60859對GB 6568.2—1986進行修訂時,還保留了GB6568.2—1986中實踐證明適合我國情況又不妨礙國際通用的那些內容。
根據GB/T 1.1—1993的規定,保留了該國際標準的前言。
本標準在章節的編排上按GB/T 1.1—1993規定,增加了2章,即:第1章:范圍,第2章:引用標準;原標準中的第1章:衣料試驗方法,為本標準的第3章;原標準中的第2章:成品試驗方法,為本標準的第4章。
本標準從實施之日起,同時代替GB6568.2—1986。
本標準由國家經貿委電力司提出。
本標準由全國帶電作業標準化技術委員會歸口。
本標準起草單位:武漢高壓研究所、武漢供電局。
本標準主要起草人:張麗華、張影萍、易輝、李漢生、歐其和。
本標準于1986年7月發布,于2000年7月修訂。
本標準由全國帶電作業標準化技術委員會負責解釋。
IEC前言
1) 國際電工委員會的這一正式技術決定或協議,是由所有對此特別感興趣的委員會的國家委員會參與制定的。它盡可能地表達了國際上與此有關的意見。
2) 本標準在國際上推薦使用,以使各會員國能夠予以接受。
3) 為促進國際上的統一,國際電工委員會希望各會員國盡可能地采用其推薦的標準。推薦標準與各會員國的相應國家標準間如有任何分歧,均應盡量在其國家標準中明確說明。
本標準由IEC TC78帶電作業工具技術委員會所制定。

對此標準贊成投票的所有資料可以在上表中投票公報中找到。
本標準引用如下國際電工委員會出版物:
IEC 50(151):1987 國際電工詞匯151章——電磁設備
IEC 212:1971 固體絕緣材料試驗前和試驗時采用的標準
IEC 456:1974 家用洗衣機測量電氣服裝性能的方法,修訂1號(1980年)
引用其他出版物:國際標準協會標準
IEC 479:1975 出版物——自然尺寸——名稱及公差
IEC 3290:1975 滾動軸承——軸承部分——滾動軸承用滾珠
1 范圍
本標準為帶電作業用屏蔽服的專用試驗方法,需與GB6568.1—2000《帶電作業用屏蔽服裝》配合使用。
2 引用標準
下列標準所包含的條文,通過在本標準中引用而構成為本標準的條文。本標準出版時,所示版本均為有效。所有標準都會被修訂,使用本標準的各方應探討使用下列標準最新版本的可能性。
GB6568.1—2000 帶電作業用屏蔽服裝
GB/T 16927.2—1997 高電壓試驗技術 第2部分:測量系統(eqv IEC 60060-2:1994)
IEC 60456:1980 家用洗衣機測量電氣服裝性能的方法
3 衣料試驗方法
3.1 屏蔽效率試驗
3.1.1 主要設備
a) 一臺頻率為50Hz、電壓有效值為600V的正弦波電壓發生器(波形符合GB/T 16927.2的要求);
b) 一個按圖1制造的黃銅電極,內裝2MΩ負載電阻,總重量為3kg;
c) 一臺輸入阻抗大于10MΩ的電壓測量儀器(電壓表或示波器);
d) 一臺量程為600V的電壓表;
e) 一塊直徑為400mm、厚度為5mm±0.5mm的橡膠板,其表面硬度為肖氏級60~65度;
f) 一塊直徑為300mm并帶有接線柱的黃銅板;
g) 一塊直徑為400mm的圓形絕緣板。

1―上蓋;2―屏蔽外殼;3―固定電纜螺孔;4―電纜連接測量儀表;5―接地螺母;6―屏蔽電極;7―絕緣板;8―接收電極;R―負載電阻
圖1 衣料屏蔽效率試驗電極裝置
3.1.2 試樣
3.1.2.1 取樣
試樣可在大匹布料處剪取。如需在大匹頭上剪取時,則必須離開布端至少2m以上處取樣。
試樣的中心點必須在樣品布料的45°對角線上,試樣上不得有影響試驗結果的嚴重疵點及整理劑浸軋不勻等。試樣面積根據試驗操作要求決定。
3.1.2.2 試樣的準備
在樣品布上距布邊至少50mm處剪取尺寸為180mm×180mm的方形試樣,共計3塊。
3.1.2.3 試樣的處理
試驗前需將試樣放置在溫度為23℃±2℃、相對濕度為45%~55%的環境中24h以上,以適應試驗環境。
3.1.3 試驗條件
試驗需在溫度為23℃±2℃及相對濕度為45%~55%的環境中進行。
3.1.4 試驗安裝
3.1.4.1 將下列部件按順序放置在一個水平支架上
a) 直徑為400mm的圓形絕緣板;
b) 直戲為300mm的圓形金屬板;
c) 直徑為400mm的合成橡膠板;
d) 最小尺寸為120mm×120mm的試樣;
e) 電極裝置(放置位置不允許超出試樣邊緣)。
3.1.4.2 將下列端子連接在一起并接地
a) 電壓發生器的低壓端;
b) 電極裝置的接地部分;
c) 電壓表的低壓端。
3.1.4.3 將下列裝置連接在一起并對地絕緣
a) 電壓發生器的高壓端;
b) 直徑為300mm的金屬板的連接柱;
c) 電壓表的高壓端。
3.1.5 試驗程序
a) 在沒有試樣的情況下,將頻率為50Hz的600V電壓有效值施加到測量設備的高、低壓設備之間,在測量儀表上讀出電極輸出端的電壓值,此值即為基準電壓,用符號U
ref表示;
b) 取出電極裝置,將試樣緊貼在電極下面壓平,并按3.1.4.1所述的順序同時放入試驗裝置中,施加電壓,讀出電極輸出端的電壓值,用符號U表示。
3.1.6 試驗結果
取3塊試樣屏蔽效率的算術平均值作為衣料的屏蔽效率。
屏蔽服衣料的屏蔽效率必須符合GB6568.1規定值。
屏蔽效率按下列公式計算:

式中:SE——屏蔽效率,dB;
U
ref——基準電壓(沒有屏蔽時),V;
U——屏蔽后的電壓值,V。
3.1.7 試驗報告
試驗報告應包括以下內容:
a) 衣料的型號、名稱、制造廠和制造日期;
b) 試樣的形狀、尺寸和數量;
c) 試樣處理條件;
d) 試驗設備的名稱、型號和規格;
e) 試驗數據和結論;
f) 試驗環境溫度和相對濕度;
g) 試驗日期及試驗人員。
3.2 衣料電阻試驗
3.2.1 主要設備
a) 一臺直流穩壓穩流電源,其輸出電壓為10V,電流為2A;
b) 一臺精度為千分之二的直流雙臂電橋;
c) 一個圓柱形四端環形電極,其四個圓環用厚度為15mm的有機玻璃圓盤裝配在一起,底面加工成同一水平面,并鍍以5μm厚的黃金。電極總柱高為53mm,有效測試面是一個內圓直徑為44mm、外圓直徑為114mm的環形面。電極材料選用黃銅,自重2.8kg,附加重量20kg(電極尺寸詳見圖2a,電極附加重塊尺寸見圖2b)。

1―中心圓柱形電極;2,4,5―環形電極;3―有機玻璃絕緣板;6―與試樣接觸的水平表面;7―定位螺絲;8―接線柱
圖2a 衣料電阻測量電極

1,2―鑄鐵材料附加重塊;3―有機玻璃絕緣板
圖2b 衣料電阻測量電極附加重塊
3.2.2 試樣
a) 在試品布上距布邊至少50mm處剪取尺寸為240mm×240mm的方形試樣,共計3塊;
b) 取樣方法同3.1.2.1;
c) 試樣的處理同3.1.2.3。
如系使用中的舊衣服,則在衣服不同部位測試,不必剪樣。
3.2.3 試驗條件
試驗應在溫度為23℃±2℃、相對濕度為45%~55%的環境中進行。
3.2.4 試驗程序
a) 連接雙臂電橋與測量電極之間的連接線,電極內、外兩個圓電極為電流端,中間兩個圓電極為電壓端;
b) 將試樣用繡花框繃平,以盡量減少試樣折皺,然后放在光滑平整的絕緣板上,絕緣板上墊有5mm厚毛氈;
c) 測量電極放在試樣上,使之接觸良好,然后將附加重塊20kg壓在電極上,此時電橋指示值即為測量的電阻值。
分別在每塊試樣5個不同位置測試,3塊試樣共側得15個數據。
3.2.5 試驗結果
在3塊試樣的15個試驗數據中去掉最大讀數值和最小讀數值,取中間的13個讀數值的算術平均值作為衣料電阻值。
屏蔽服衣料電阻值必須符合GB6568.1規定值。
3.2.6 試驗報告
試驗報告應包括的內容同3.1.7。
3.3 衣料熔斷電流試驗
3.3.1 主要設備
a) 一個用絕緣材料構成的電極支撐架(見圖3),用來固定測試電極和試樣;
b) 四塊用3mm厚的黃銅板做成的測試電極板,在電極支撐架的兩端各由兩塊電極板構成測試電極。每塊電極板的尺寸為20mm×90mm,與試樣的接觸面積為20mm×20mm。要求電極板表面光滑平整;
c) 一臺輸出電流為0~100A的大電流發生器;
d) 一臺容量為1kVA的交流穩壓電源;
e) 一臺量程為0~100A的交流電流表;
f) 一只秒表;
g) 一個防風試驗柜,如圖4a所示,其尺寸見圖4b。

1―電極;2―絕緣支撐架
圖3 衣料熔斷電流試驗裝置

圖4a 試驗柜外形圖

1-通氣孔
圖4b 試驗柜加工圖
3.3.2 試樣
a) 在樣品布上距布邊至少50mm處,分別按經向和緯向各剪取3塊尺寸為200mm×25mm的矩形試樣,共計6塊,然后精確修整邊紗,使其寬度為20mm(公差為二分之一根紗);
b) 取樣方法同3.1.2.1;
c) 試驗的處理同3.1.2.3。
3.3.3 試樣安裝
將試驗的兩端分別置于兩個測試電極的兩塊銅板之間,銅板兩端用直徑為10mm的螺栓固定,如圖3所示。
將安裝好試樣的電極支撐架置于防風試驗柜中,試驗柜放在溫度為23℃±2℃、相對濕度為45%~55%的環境中。
3.3.4 試驗程序
3.3.4.1 對Ⅰ型衣料的試樣,先加3A試驗電流,停留5min以后,按每級1A試驗電流分階段上升,每階段停留5min,直至試驗熔斷為止。記錄試樣的熔斷電流和熔斷時間,并記錄各階段的試樣變化情況。
3.3.5 試驗結果
取6塊試樣熔斷電流的算術平均值作為衣料熔斷電流。
衣料熔斷電流必須符合GB 6568.1規定值。
3.3.6 試驗報告
試驗報告應包括以下內容:
a) 衣料的型號、名稱、制造廠和制造日期;
b) 試樣的形狀、尺寸和數量;
c) 試樣的處理條件;
d) 試驗設備的名稱、型號和規格;
e) 試樣的變化情況,試驗數據和結論;
f) 試驗環境溫度和相對濕度;
g) 試驗日期及試驗員。
3.4 耐電火花試驗
3.4.1 主要設備
a) 一臺76-1型電火花真空檢測器,其工作電壓為220V±20V,電源頻率為50Hz,輸出功率不大于60W,火舌長度不小于25mm;
b) 一塊直徑為140mm的圓盤形平板電極;
c) 一塊秒表。
3.4.2 試樣
a) 在樣品布上距布邊至少50mm處剪取尺寸為180mm×180mm的方形試樣,共3塊;
b) 取樣方法同3.1.2.1;
c) 試樣的處理同3.1.2.3。
3.4.3 試驗程序
a) 將試樣置于圓盤形平板電極上固定,使試樣平整舒展不起皺,并將該圓盤形平板電極接地。
b) 將電火花真空檢測器發射極置于與平板電極垂直的位置,試樣距電火花發射嘴的距離為6mm±1mm;
c) 啟動電火花真空檢測器并開始記時,2min以后停止電火花,記錄試樣變化情況并測出炭化破壞面積。
在每塊試樣上測試5個點,3塊試樣上共測15個點。要保證燃弧部分離試樣邊緣20mm以上,每點間隔40mm以上。
3.4.4 試驗結果
a) 試樣在電火花的作用下應無明火蔓延,僅炭化;
b) 取15個測試點的炭化破壞面積的算術平均值來表征衣料的耐電火花性能,單位為平方毫米。衣料耐電火花性能必須符合GB6568.1規定;
c) 試驗數據處理。
允許最大相對誤差不大于平均值的20%,最大相對誤差以百分數表示,并按下式計算:

當計算結果超過允許相對誤差時,去掉誤差最大的觀察值,然后將剩余的觀察值再按上式計算,直至符合規定為止,舍去的觀察值的個數不得超過測試點的40%,否則應重新取樣試驗。
3.4.5 試驗報告
試驗報告應包括的內容同3.3.6。
3.5 耐燃試驗
3.5.1 主要設備
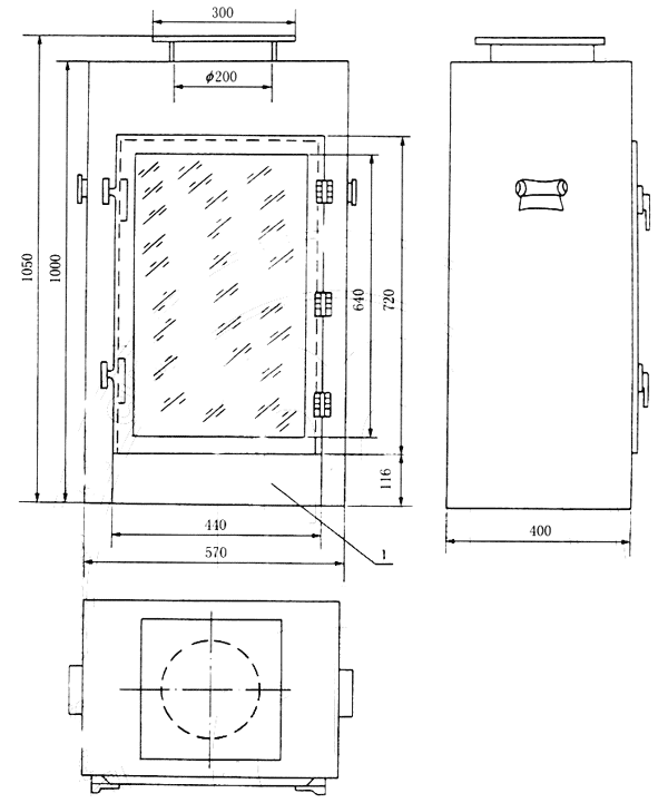
3.5.1.1 試驗柜
試驗柜由1.5mm厚的鋼板結構,柜內壁涂成黑色。
試驗柜的結構如圖4a和圖4b所示:
a) 柜的前后兩面由兩塊鋼板組成,分別開有尺寸為116mm×440mm(高×長)通氣孔一個;
b) 柜子的前面一塊鋼板的通氣孔的上部裝有一個玻璃門,以供進出和觀察;
c) 柜子的頂板有一個直徑為200mm的孔,一塊尺寸為300mm×300mm的鋼板架設在此孔的上方,構成擋板;
d) 在試驗柜中安裝一副垂直固定的試樣夾具,夾具的下端距離柜內底部約110mm。
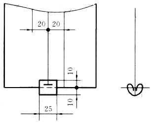
3.5.1.2 試樣夾具
試樣夾具用于試驗中夾緊試樣,它由兩部分組成,如圖5所示:
a) 一個夾具支撐件“1”,其上固定有兩根厚度為5mm、相距150mm的金屬棒“2”;
b) 兩根厚度為5mm的活動金屬棒“3”,用卡鉗或鋼夾固定在金屬棒“2”上。棒“2”和棒“3”之間夾上試樣,以達到很好地懸掛試樣的目的。
3.5.1.3 附件
a) 標準點火布樣,其成分為65%聚酯、35%棉紗,單位面積的重量為110g/m
2左右,為未漂白且未經修整的平紋聚脂棉紗織物;
b) 卡鉗或鋼夾兩個;
c) 秒表一只;
d) 尺寸為600mm×350mm反光鏡一塊,將其放在試驗柜的后壁上,用以觀察試樣背面的燃燒情況。

1―夾具支撐件;2―固定棒;3―活動棒;4―試樣
圖5 試樣夾具
3.5.2 試樣
a) 在試品布上距布邊至少50mm處,分別按經向和緯向各剪取3塊尺寸為300mm×190mm的矩形試樣,共計6塊。試樣固定到試樣夾具上以后,其試驗面積為300mm×150mm;
b) 取樣方法同3.1.2.1;
c) 試樣的處理同3.1.2.3。
3.5.3 試驗程序
3.5.3.1 準備標準點火布樣
a) 剪取一塊尺寸為80mm×25mm的聚脂棉紗條,其長度方向與經紗方向一致;
b) 將該聚酯棉紗條在長度方向上折疊成尺寸為20mm×25mm的長方形,兩端在里面。
3.5.3.2 夾緊標準點火布樣
如圖6所示,將標準點火布樣夾在試樣下端的中間,夾子成水平狀固定,使標準點火布樣在試樣的前后兩側各有兩層,并使標準點火布樣的末端比試樣的下端低10mm。

圖6 標準點火布樣安裝圖
3.5.3.3 耐燃試驗
先將試樣固定在垂直吊掛在試驗柜內的試樣夾具上,使其下端與夾具的下端在同一水平線上,且標準點火布樣必須與夾具的兩根垂直棒的距離等同;然后劃一根火柴,將標準點火布樣下端的中間點燃(點火時間為2s),立即起動秒表并關上試驗柜的玻璃門;標準點火布樣正常燃燒25s~30s,觀察試樣在試驗期間的燃燒情況,并記錄以下結果:
a) 冒煙情況;
b) 變形情況;
c) 熔斷情況;
d) 待試樣上有明火消失時,記錄明火燃燒時間;
e) 待試樣上的殘留余輝熄滅時,即記下試樣陰燃時間;
f) 取下試樣,將其在溫度為23℃±2℃、相對濕度為45%~55%的環境中放置15min以后,測量圓錐形燒焦處的高度,即為炭長;
g) 測量燒壞面積:用剪刀剪去燒壞或熔化的部分,然后將該試樣放在樣品上,使其保持形狀與樣品一樣,將燒壞部分描在方格計算繪圖紙上,用換算法或幾何測量面積的方法來測量燒壞部分的面積。
3.5.4 試驗結果
試驗所取的6塊試樣均須滿足下列條件:
a) 試樣的燒壞面積應符合GB 6568.1規定值;
b) 試樣的燒壞面未擴散到試樣夾具的垂直部位,同時也未擴散到試樣的上端邊緣,即試樣的碳長應符合GB6568.1規定值。
3.5.5 試驗報告
試驗報告應包括的內容同3.3.6。
3.6 耐洗滌試驗
為了確保在多次洗滌以后,屏蔽服的電氣性能和耐燃性能不會出現過分損壞,必須采用下述方法進行洗滌。如果不適用這種方法洗滌,制造廠必須相應地作上標記,并注明所采用的洗滌方法。
3.6.1 主要設備
3.6.1.1 洗衣機
洗衣機應具備以下技術條件:
a) 洗衣機的正常攪拌速度為300r/min~500r/min,每個方向交替旋轉30s;
b) 洗滌時間調節在0min~15min之間,最小調節時間為1min;
c) 脫水速度:正常情況下940r/min~1450r/min。
3.6.1.2 洗滌劑
采用的洗滌劑不得含有漂白劑。
可采用國產30型洗滌劑,在有爭議的情況下,可參照IEC 456附錄1表Ⅱ中規定的“標準洗滌劑”中的無過硼酸鹽的洗滌劑(Ⅱ型)的配方。
3.6.1.3 等效負載
單位面積的重量約為110g/m
2的織好而未染色的聚脂-棉紗纖維布。
3.6.2 試樣的準備
a) 在樣品布上距布邊至少50mm處,按經紗和緯紗垂直方向剪取尺寸為260mm×260mm的方形試樣,共3塊,沿四周邊緣縫進毛邊;
b) 取樣方法同3.1.2.1。
3.6.3 試驗程序
a) 洗滌:將3塊試樣放入洗衣機內并加入一定量的等效負載,使干織物的總重量等于2kg;往洗衣機內注入40L±4L水,使水溫達到50℃~70℃,并把洗衣機操作在“正常”洗滌位置(如果試樣的重量超過2kg,則水量應按比例增加)。
b) 漂洗:放去皂液,開動洗衣機繼續運轉進行漂洗,共漂洗3次,每次2min~3min。
c) 脫水:將試樣和等效負荷一起放到脫水桶里進行脫水,時間為1min~2min。
d) 在最后一道脫水工序結束后,將試樣和等效負載取出,一起放到烘干機里,烘干溫度為65℃~70℃,直至烘干為止。
這樣,一次“洗滌-烘干”過程完成。
做完10次“洗滌-烘干”過程后,應將試樣展平放在環境溫度為23℃±2℃、相對濕度為45%~55%的條件下存放4h以上,然后按3.1、3.2、3.3和3.5條的方法重新做電氣試驗和耐燃試驗。
3.6.4 試驗結果
經10次“洗滌-烘干”過程后,衣料的電氣性能和耐燃性能均應符合GB6568.1規定。
3.6.5 試驗報告
試驗報告應包括的內容同3.3.6。
3.7 耐汗蝕試驗
3.7.1 設備和材料
3.7.1.1 主要設備
a) 恒溫干燥箱一個,能保溫37℃±2℃的試驗溫度;
b) 玻璃皿兩個,其高為300mm,內徑為240mm以上;
c) 試驗板四塊,其厚約為3mm、面積250mm×250mm的玻璃板或丙烯酸樹脂板;
d) 精度為1mg的天平一個。
3.7.1.2 試驗用化學劑
a)L-組氨酸 1-氨化氫 1-水合物(C
6H
9O
2N
3·HCl·H
2O)
b)氯化鈉(NaCl),化學純;
c) 磷酸氫二鈉十二水合物(Na
2HPO
4·12H
2O),化學純,或磷酸氫二鈉二水化合物(Na
2HPO
4·2H
2O),化學純;
d) 磷酸二氫鈉二水合物(NaH
2PO
4·2H
2O),化學純;
e) 氫氧化鈉(NaOH),化學純。
3.7.2 試樣
a) 在試品布上距布邊至少50mm處剪取尺寸為240mm×240mm的方形試樣,共計6塊;
b) 取樣方法同3.1.2.1;
c) 試樣的處理同3.1.2.3。
3.7.3 試液的配制
用蒸餾水配制,現配現用。
堿液每升含:

3.7.4 試驗程序
a) 在浴比為20:1的酸、堿試液里,分別放入3塊試樣,使其完全浸濕,然后在室溫下放置30min,必要時可稍加锨壓和撥動,以保證試驗能良好而均勻的滲透;
b) 取出試樣,倒去殘液,把酸堿兩組試樣分別放在兩塊試樣板上,用玻璃棒刮去試樣上過多的試液,然后將試樣分別夾在兩塊試樣板中間;
c) 把分別夾有酸堿兩組試樣的試樣板平放在恒溫箱里,在37℃±2℃溫度下放置2h;
d) 拆去試樣夾板,展開試樣,并將其懸掛在溫度不超過60℃的空氣中直至干燥為止。
這樣,一次“汗蝕-烘干”周期完成。
在整個試驗過程中,酸和堿試驗設備要分開。經過3次“汗蝕-烘干”周期后,按3.2所述的方法,分別測量耐酸性汗蝕和耐堿性汗蝕后的試樣電阻。
3.7.5 試驗結果
分別耐酸性汗蝕和耐堿性汗蝕后的衣料電阻值應符合GB6568.1規定值。
3.7.6 試驗報告
試驗報告應包括下列內容:
a) 衣料的型號、名稱、制造廠和制造日期;
b) 試樣的形狀、尺寸和數量;
c) 試樣處理條件;
d) 試驗設備的名稱、型號和規格;
e) 試驗溶液的成分、名稱;
f) 試驗數據和結論;
g) 試驗環境的溫度和相對濕度;
h) 試驗日期及試驗員。
3.8 耐磨試驗
3.8.1 主要設備
a) 一臺改型Y522圓盤式織物耐磨試驗機,其工作盤直徑為140mm,砂輪摩擦軌跡寬24mm,選用砂輪規格為150粒碳化硅砂輪;
b) 一副求積儀。
3.8.2 試樣
a) 在樣品布上距布邊至少50mm處,按經紗和緯紗垂直方向剪取尺寸為240mm×240mm的方形試樣,共3塊;
b) 取樣方法同3.1.2.1;
c) 試樣處理同3.1.2.3。
3.8.3 試驗條件
試驗需在溫度為23℃±2℃、相對濕度為45%~55%的環境中進行。
3.8.4 試驗程序
a) 修整砂輪,使砂輪出新摩擦面,并用砂紙手磨砂輪棱角。砂輪每使用500轉后,需要重復修整一次,以保證試驗的正確性;
b) 將試樣放在工作盤上固定,使試樣平整舒展,并給試樣表面施加一定的壓力,其大小為250g加砂輪自重;
c) 啟動耐磨機,同時啟動吸塵器,并用毛刷清掃砂輪,保持砂輪上無粉末吸附,每磨200轉停機一次,觀察試樣的表面變化,并按3.1所述的方法測量試樣的屏蔽效率,按3.2所述的方法測量試樣電阻,直至摩擦到試樣的耐磨轉數為止。
3.8.5 試樣耐磨轉數的確定
試樣在出現下列情況之一時的轉數即為試樣的耐磨轉數:
a) 試樣5個位置的測量電阻的平均值符合GB6568.1規定值的1Ω時;
b) 屏蔽效率符合GB6568.1規定的30dB時;
c) 出現網格狀損壞面的面積大于或等于6cm
2時;
d) 出現個別洞眼的面積大于或等于2cm2時。
3.8.6 試驗結果
a) 取3塊試樣耐磨轉數的算術平均值作為衣料的耐磨轉數。
耐磨轉數應符合GB6568.1規定值。
b) 試驗數據處理
允許最大相對誤差不大于平均值的40%。最大相對誤差以百分數表示,并按下式計算:

當計算結果超過允許相對誤差時,舍去誤差最大的試樣的測量值,重新補充試樣試驗,直至符合規定為止。
3.8.7 試驗報告
試驗報告應包括的內容同3.1.7。
3.9 主要設備
3.9.1 一臺Y561型織物透氣儀或織物中壓透氣儀。
3.9.2 試樣
a) 取樣方法同3.1.2.1;
b) 試驗可在整段樣品布上進行,試樣可不必開剪。如需開剪時,則在樣品布上距布邊至少50mm處,至少剪取尺寸為400mm×全幅的試樣一塊,試樣的各邊分別與織物的經向和緯向一致。所取試樣不應折皺,也不能燙平。
c) 試樣的處理同3.1.2.3。
3.9.3 試驗條件
試驗需在溫度為23℃±2℃、相對濕度為45%~55%的環境中進行。
3.9.4 試驗程序
a) 將試樣平放在透氣儀的進氣孔上,套上適當的夾圈并固緊試樣;
b) 緩慢調節吸風電機的速度并逐漸抽真空,使試樣兩側達到147Pa固定壓差,及時讀取垂直壓力計的液面高。如某些織物達不到上述壓差時,可采用其他壓差,但應在試驗報告中注明使用的具體壓差;
c) 根據垂直壓力計的液面讀數,從儀器提供的壓差-流量表格中查出試樣的透氣量;
d) 在試驗上隨機選擇10個位置重復a)~c)項程序,一共進行10次透氣性能試驗。
對于涂層類織物或膠合織物不宜用此方法試驗。
3.9.5 試驗結果
以試樣10次透氣性能試驗的算術平均值作為檢驗衣料透氣性能的指標。
衣料的透氣量以L/(m2·s)為單位,其值應符合GB6568.1規定值。
3.9.6 試驗報告
試驗報告應包括的內容同3.1.7。
3.10 斷裂強度和斷裂伸長率試驗
3.10.1 主要設備
織物斷裂強度試驗機一臺,應符合下列要求;
a) 斷裂強度應以牛頓為單位;
b) 上下夾鉗間距離為20cm;
c) 下夾鉗未載荷時下降速度為10cm/min~11cm/min;
d) 選定的荷載重錘,應使試驗數據在刻度盤指示讀數的20%~75%的范圍內為宜;
e) 預加張力重錘夾有0.25kg、0.5kg和1kg三種。
3.10.2 試樣
3.10.2.1 取樣
取樣方法同3.1.2.1。
3.10.2.2 試樣的準備
在樣品布上距布邊至少100mm處,分別剪取長度方向與經向一致和長度方向與緯向一致的矩形試樣各3塊,共計6塊;試樣的寬約55mm,長度隨試驗儀器類型而定(約300mm~380mm),然后精確修整邊紗,使試樣寬度為50mm(公差為二分之一根紗)。
3.10.2.3 試樣的處理
試樣的處理同3.1.2.3。
3.10.3 試驗條件
試驗需在溫度為23℃±2℃、相對濕度為45%~55%的環境中進行。
3.10.4 預加張力懸掛重錘的規定
斷裂強度不超過1961N者懸掛0.5kg重錘,超過者懸掛1kg重錘。
3.10.5 試驗程序
a) 試驗前應先校正斷裂強度刻度盤上的“0”點位置;
b) 先放下夾持器,固定上夾,并將試樣一端置入上夾鉗內,夾于中間位置,稍加擰緊,再將試樣另一端置入下夾鉗內,懸掛張力重錘;將上夾鉗略加放松,使布條由重錘作用稍下降而垂直,再行擰緊上夾鉗,隨即放松夾持器,擰緊下夾鉗,移去重錘;
c) 開動強力機,使下夾持器下降,直至試樣斷裂為止,記錄試樣的斷裂強度和斷裂伸長厘米數及斷裂伸長率。如無伸長標尺者,則需量取斷裂時試樣伸長厘米數,并行記錄;
d) 將上、下夾鉗松開,取下斷裂試樣。
3.10.6 試驗結果
a) 試樣的斷裂強度系指50mm×200mm的布條斷裂時的荷重,單位為公斤,各以經向及緯向的3塊試樣試驗結果的算術平均值小數二位,按四舍五入法,保留小數一位,作為衣料經向及緯向斷裂強度的指標。
b) 衣料經向及緯向斷裂強度均應符合GB6568.1規定值。
衣料斷裂伸長率按下列公式計算:

c) 各以經向及緯向的3塊試樣斷裂伸長率的算術平均值,作為衣料經向及緯向斷裂伸長率,以百分數表示,其值均應符合GB6568.1規定值。
3.10.7 試驗注意事項
a) 在試驗中,如試樣滑脫或在夾鉗口斷裂時,應重換試樣試驗;
b) 在試驗中,如發現有試驗讀數不準或機構故障等現象,應及時停止試驗,檢查原因,校正后方可再行試驗;
c) 操作時,防止夾鉗口內試樣扭轉歪斜;
d) 強力機應定期校驗,加強機構保養,并應經常觀察強度刻度盤“0”點,如有移動及時糾正;
e) 懸掛張力重錘時,必須與夾鉗相平行,不得有歪斜。
3.10.8 試驗報告
試驗報告應包括的內容同3.1.7。
4 成品試驗方法
4.1 上衣、褲子電阻試驗
4.1.1 主要設備
a) 一塊量程為0.1Ω~20Ω的電阻表,其誤差小于或等于1%;
b) 兩個帶接線柱的黃銅電極,每個電極重1kg,底面接觸面積為1cm2,詳見圖7。
4.1.2 試驗條件
試驗需在溫度為23℃±2℃、相對濕度為45%~55%的環境中進行。
4.1.3 試驗程序
a) 在試驗臺面上鋪一塊厚為5mm的毛氈,將上衣及褲子平鋪在毛氈上,其內襯墊一層塑料薄膜,使上衣及褲子各布之間隔開,避免層間電氣短路;
b) 將試驗電極分別置于上衣或褲子的兩個最遠端點上,測量上衣或褲子各最遠端點之間的電阻。
測試點應距各接縫邊緣和分流連接線3cm以遠。
4.1.4 試驗結果
上衣、褲子各最遠端點之間的電阻均應符合GB6568.1規定值。
4.1.5 試驗報告
試驗報告應包括以下內容:
a) 試品的型號、名稱、制造廠和制造日期;
b) 試驗設備的名稱、型號、序號和規格;
c) 試驗環境溫度和相對濕度;
d) 試驗數據和結論;
e) 試驗日期及試驗員。

圖7 成品電阻試驗電極
4.2 手套、短襪電阻試驗
4.2.1 主要設備
同4.1.1。
4.2.2 試驗條件
試驗需在溫度為23℃±2℃、相對濕度為45%~55%的環境中進行。
4.2.3 試驗程序
a) 在試驗臺面上鋪一塊厚為5mm的毛氈,將手套及短襪平鋪在毛氈上,其內襯墊一層塑料薄膜,使各布層間相互隔開,避免層間電氣短路;
b) 將一個試驗電極壓在手套的中指指尖或短襪的襪尖處,另一個試驗電極壓在手套或短襪的開口處的分流連接線上,用歐姆表測量兩極之間的電阻。
4.2.4 試驗結果
手套、短襪各處的電阻均應符合GB6568.1規定值。
4.2.5 試驗報告
試驗報告應包括的內容同4.1.5。
4.3 鞋子電阻試驗
4.3.1 主要設備
a) 一塊量程為1Ω~1000Ω的電阻表,其誤差小于或等于1%;
b) 一塊尺寸為300mm×200mm的黃銅平板電極和一個直徑為30mm、高為50mm帶接線柱的圓柱形黃銅電極;
c) 直徑為4mm的鋼珠數公斤。
4.3.2 試驗程序
將鞋子平放在平板電極上,然后將圓柱形電極放在鞋里的底面上,并裝上直徑為4mm的鋼珠鋪在電極周圍,以將整個鞋底蓋住并達到20mm深(如圖8所示,在腳后跟處測量),用電阻表測量兩電極之間的電阻。
對裝有分流連接線的鞋子,將鞋子平放在平板電極上,其內裝有直徑為4mm的鋼珠達20mm深,可在分流連接線與平板電極之間測量電阻。

1―測試電極接線柱;2―鋼珠;3―測試電極
圖8 鞋子電阻測量示意圖
4.3.3 試驗結果
鞋子電阻應符合GB6568.1規定值。
4.3.4 試驗報告
試驗報告應包括的內容同4.1.5。
4.4 整套衣服電阻試驗
4.4.1 主要設備
a) 一塊量程為0.1Ω~50Ω的電阻表,其誤差小于或等于1%;
b) 兩個黃銅電極,每個電極重1kg,底面接觸面積為1cm2;
c) 一套普通布料服裝;
d) 一個模擬人。
4.4.2 試驗條件
試驗需在溫度為23℃±2℃、相對濕度為45%~55%的環境中進行。
4.4.3 試驗程序
a) 先給模擬人穿上一套普通布料服裝,然后外面再穿上一套被測屏蔽服,并將其躺臥在試驗用條桌上;
b) 將兩個黃銅電極分別垂直平放在各被測點上,檢測手套與短襪及帽子與短襪間的電阻,測點位置應距接縫邊緣及分流連接線3cm以遠。
4.4.4 試驗結果
整套衣服任何兩個最遠端點間的電阻均應符合GB6568.1規定值。
4.4.5 試驗報告
試驗報告應包括的內容同4.1.5。
4.5 整套衣服內部電場強度試驗
4.5.1 主要設備
a) 一條500kV模似線路,其桿塔、絕緣子、分裂導線、金具等均按實際線路情況布置;
b) 量程為0kV/m~30kV/m、0kV~1000kV/m的場強表兩塊,其誤差小于或等于1%;
c) 一個可掛在導線上的載人絕緣坐椅;
d) 一個用絕緣材料制成的模擬人;
e) 一副望遠鏡;
f) 一臺400kV以上工頻試驗變壓器及其配套件(應符合GB/T 16927.2的要求)。
4.5.2 試驗條件
試驗需在溫度為23℃±2℃、相對濕度為45%~55%的環境中進行。
4.5.3 試驗程序
a) 將絕緣坐椅掛在模擬導線的懸垂絕緣子串下面,并將穿好被試屏蔽服的模擬人安放在絕緣坐椅上,場強表懸掛在模擬人的胸前部,場強表應屏蔽良好。
b) 在場強表探頭分別置于屏蔽服帽子下頭頂處及屏蔽服內胸前、背后等3處位置的情況下,按規定的使用電壓等級,在模擬導線上施加最高運行電壓(試驗電壓見表1),然后用望遠鏡分別讀取3個數據;
c) 在場強表緊貼模擬人裸露的左面頰和右面頰的情況下,按規定的使用電壓等級,在模擬導線上施加最高運行相電壓(試驗電壓見表1),然后用望遠鏡分別讀取3個數據。
表1 整套衣服屏蔽性能試驗時的試驗電壓 kV

4.5.4 試驗結果
分別取各測試部位讀數的算術平均值作為屏蔽服內人體各處的體表場強和裸露面的局部體表場強。
屏蔽服內人體表面處任何測點的場強和人體裸露部位的局部體表場強均應符合GB6568.1規定值。
4.5.5 試驗報告
試驗報告應包括的內容同4.1.5。
4.6 整套衣服內流經人體電流試驗
4.6.1 主要設備
a) 一塊屏蔽良好的數字式微安表,其精度為0.1μA;
b) 一個用絕緣材料制成的模擬人;
c) 一套試驗用屏蔽服及一套普通布料服裝(或塑料薄膜絕緣服);
d) 一個高度為4m以上的絕緣平臺;
e) 一條模擬500kV線路結構的試驗導線;
f) 一臺400kV以上工頻試驗變壓器及其配套件(應符合GB/T 16927.2的要求);
g) 一副望遠鏡。
4.6.2 試驗條件
試驗需在溫度為23℃±2℃、相對濕度為45%~55%的環境中進行。
4.6.3 試驗程序
a) 先給模擬人穿上一套導電良好的屏蔽服作模擬人體表面用,并從此屏蔽服腰部引出一根屏蔽導線作電流測量引線用,然后在外面穿上一套普通布料服裝作絕緣服用,再穿上一套被測屏蔽服作試驗用;
b) 按圖9所示布置試驗現場,連接好測量電流I1的連線和其他試驗連線后,將屏蔽良好的微安表懸掛在模擬人的頸上;

1―旁路等電位線;2―人體皮膚;3―絕緣連褲內衣;4―屏蔽服;5―高電位線;6―測量電流I2時的連線;7―屏蔽起來大微安表;8―接點(香蕉觸頭);9―測量電流I1時的連線;10―衣服上的連接處;11―皮膚上的連接處,通過一根本10cm寬的穿孔導電布帶緊貼在皮膚上
圖9 流經屏蔽服及人體電流測量接線圖
c) 按規定的使用電壓等級,在模擬導線上按表1的規定施加試驗電壓后,用望遠鏡讀出電流I1,此電流即為流經屏蔽服和人體的總電流(測量原理見圖10a);
d) 降低試驗電壓到0,斷開電源后,按圖9所示改接微安表到測量電流I2的連線;
e) 按規定的使用電壓等級,在模擬導線上按上表規定施加試驗電壓后,用望遠鏡讀取3個電流I2數據,此電流即為模擬流經人體的電流(測量原理見圖10b)。

4.6.4 試驗結果
取3次I2讀數的算術平均值模擬狀況下屏蔽服內流經人體的電流。
屏蔽服內流經人體的電流應符合GB6568.1規定值。
4.6.5 試驗報告
試驗報告應包括的內容同4.1.5。
4.7 整套衣服通流容量試驗
4.7.1 主要設備
a) 兩副3mm厚度的黃銅平板電極,每塊尺寸為20mm×90mm,兩端用φ10mm螺栓固定,電極有效接觸面積為20mm×32mm(參見圖3);
b) 一臺50A電流發生器及一臺調壓器;
c) 1~2臺半導體溫度計或其他測量裝置;
d) 一套普通布料服裝;
e) 一個模擬人。
4.7.2 試驗條件
試驗需在溫度為23℃±2℃、相對濕度為45%~55%環境中進行。
4.7.3 試驗程序
a) 給模擬人先穿一套普通布料服裝,再穿一套被試屏蔽服后,將其放坐在椅子上;
b) 用黃銅平板電極分別夾在手套手指部和短襪足尖部,并將電極接入試驗回路;電極夾接位置應距接縫部位和分流連接線3cm以遠;
c) 對Ⅰ型屏蔽服先通以5A試驗電流,對Ⅱ型屏蔽服先通以30A試驗電流,經過15min熱穩定以后,仔細檢測屏蔽服上最熱點溫度,同時記錄試驗環境溫度;
d) 按每級1A試驗電流分段上升,每階段停留15min后,繼續檢測屏蔽服上最熱點溫度,并記錄試驗環境溫度;
e) 屏蔽服上最熱點溫度與試驗環境溫度之差為屏蔽服溫升。當屏蔽服溫升超過允許的50K溫升限值時,試驗即停止;
f) 用黃銅平板電極分別夾在帽子頂部和短襪足尖部,并將電極接入試驗回路,電極夾接位置應距接縫部位和分流連接線3cm以遠;
g) 重復c)~e)條款試驗。
4.7.4 試驗結果
屏蔽服溫升小于或等于允許溫升限值時的最大試驗電流即為屏蔽通流容量。
屏蔽服通流容量應符合GB6568.1規定值。
4.7.5 試驗報告
4.8 試驗報告應包括的內容同4.1.5