2020年11月12日上午11時30分左右,汾陽市污水處理廠進廠干管改造工程項目發生一起中毒窒息死亡事故,造成3人死亡,直接經濟損失523.1萬元。
事故發生后,省、市領導高度重視,先后做出重要批示。依據《中華人民共和國安全生產法》、《生產安全事故報告和調查處理條例》(國務院令第493號)規定,經呂梁市人民政府批準,由呂梁市應急局牽頭,會同市城市管理局、市公安局、市總工會、汾陽市政府等相關部門成立了事故調查組,向市紀委監委發出了邀請函參與事故調查。事故調查組堅決貫徹落實省、市領導批示精神,按照科學嚴謹、依法依規、實事求是、注重實效和“四不放過”的原則,查清了事故發生的經過和應急救援情況,委托相關機構對事發井內有毒氣體進行了鑒定,聘請相關專家進行技術論證,查明了事故發生的直接和間接原因,提出了對有關責任人員及責任單位的處理建議和事故防范措施。現將有關情況報告如下:
一、基本情況
(一)事故相關單位情況
1.建設單位:汾陽市公用事業服務中心,統一社會信用代碼:12142303670191977M,事業單位法人,法定代表人申東高。
2.施工單位:國安建設有限公司,法定代表人宋浩,統一社會信用代碼:911401007902346288,注冊資本2億元。營業執照注冊地址為太原市杏花嶺區旱西關街38號商住樓1單元502房。經濟類型:有限責任公司,經營期限:2006年7月19日至2026年7月18日;《建筑業企業資質證書》編號:D114042790),領證日期為2017年7月14日,有效期至2021年2月4日,資質類別及等級:建筑工程施工總承包壹級;市政公用工程施工總承包壹級;鋼結構工程專業承包壹級;《安全生產許可證》發證機關為山西省住房和城鄉建設廳;有限期為2019年11月29日至2022年11月29日。
經營范圍為房屋建筑工程施工總承包、市政公用工程施工總承包、機電安裝工程施工總承包、建筑裝修裝飾工程專業承包、土石方工程專業承包、消防設施工程專業承包、地基與基礎工程專業承包、鋼結構工程專業承包、公路工程施工總承包、水利水電工程施工總承包、電力工程施工總承包、機電工程施工總承包、消防設施工程專業承包、橋梁工程專業承包、隧道工程專業承包、園林綠化工程施工、綠化養護、建材的銷售、建筑工程咨詢。資質類別及等級:建筑工程施工總承包壹級;市政公用工程施工總承包壹級;鋼結構工程專業承包壹級。
3.監理單位:中經國際工程監理集團有限公司(以下簡稱中經國際),法定代表人為許娜,統一社會信用代碼為91110101059251074T,成立于2012年12月2日,營業執照住所地為北京市東城區濱河路1號708房間,有效期至2032年12月20日,公司類型為有限責任公司。經營范圍為工程管理服務、工程監理、建設工程項目管理、建設工程造價咨詢、招標代理、體育賽事策劃、銷售機電設備等。該公司企業資質為機電安裝工程專業資質乙級、電力工程專業資質乙級、公路工程專業資質乙級、市政公用工程專業資質乙級。
4.設計單位:太原市精益市政工程設計有限公司,法定代表人為雒剛毅,統一社會信用代碼為91140100602081557W,公司類型為有限責任公司(自然人投資或控股),住所地太原市杏花嶺區新開北巷3號東瑞小區2號樓1單元11號,注冊資本800萬元整,成立于1998年4月8日,有效期至2026年2月17日,經營范圍為市政工程設計、特種設備(壓力管道設計)、工程測量、工程咨詢、描曬圖紙、風景園林工程設計(依法須經相關部門批準后方可開展經營活動)。
設計資質證書情況:市政行業(給水工程、橋梁工程、環境衛生工程、排水工程、城鎮燃氣工程、熱力工程、道路工程)專業乙級;風景園林工程設計專項乙級,可從事資質證書許可范圍內相應的建設工程總承包業務乙級項目管理和相關的技術與管理服務。
(二)工程項目基本情況
項目名稱:汾陽市污水處理廠進廠干管改造工程(景區路-污水處理廠)。
該工程位于汾陽市文峰街道建昌村汾陽市污水處理廠東側,起點位于景區路P-1井(樁號為K0+000,坐標為X=4123171.580;Y=572569.675),終點位于污水處理廠提升泵站前污水檢查井P-8井(樁號為K0+616.812,坐標為X=4123670.219;Y=572670.482)。管線全長617米,坡度i=0.0015,埋深5.99m~8.32m。?全線采用頂管施工,管材選用DN1200鋼筋混凝土頂管專用管,管道每隔100米左右設置工作井及接收井,工作井采用Ф7000mm圓形鋼筋混凝土沉井,Ф5000mm圓形鋼筋混凝土接收井,頂管施工完畢后,工作井、接收井內加做矩形1300×1100直線鋼筋混凝土污水檢查井。該工程是汾陽市根據省、呂梁市實施打贏碧水保衛戰2020年決戰計劃的部署安排啟動的市政公用工程,無需辦理施工許可、土地和規劃手續(見附件:《汾陽市住房和城鄉建設管理局關于汾陽市污水處理廠進廠污水干管改造工程未辦理施工許可的說明》、《汾陽市自然資源局關于汾陽市污水處理廠進廠干管改造工程無需辦理土地和規劃手續的說明》)2020年5月26日,市公用事業服務中心通過公開招標方式,確定施工單位為國安建設有限公司,中標價383.45萬元。2020年5月30日工程開工,2020年7月15日工程基本完工,僅剩新井(P-1)與舊檢查井連通工作未完成。因污水處理廠污水調節池匯水池(不屬本工程范圍)不具備通水條件,上游管道存在淤泥無法連通等原因,經建設單位與施工單位協商,工程暫停,確定待具備條件后繼續施工。
(三)事發污水井(P-1)基本情況
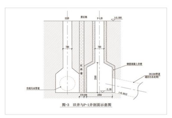
事發污水井(P-1)為設計起點井,位于舊檢查井北2.5米,為鋼筋混凝土檢查井,南壁緊臨磚砌舊檢查井,P-1檢查井內徑長*寬*高為2.0米*2.0米*2.5米,壁厚0.20米,井內底設計標高730.70米,埋深4.67米,南壁留1.2米孔洞,為下一步施工做準備,已對總厚0.37米舊壁鑿去0.24米。(如圖)


二、事故經過及救援情況
(一)事故發生經過
2020年11月10日晚,項目實際負責人蘇秋才電話通知其司機郭瑜:“明天早上聯系王文平(臨時雇傭工人,事故中死亡),你駕駛皮卡車拉上氣泵、發電機、抽水泵去建昌村加氣站往東100米路中間的污水檢查井,把新舊檢查井內的污水抽干”。
11月11日約10時至下午17時30分王文平組織抽水作業。11月12日上午繼續抽水,11時20分許,王文平發現一根抽水管扁了,經檢查污水井(P-1)內一臺水泵連接的直管開裂,王文平(現場指揮人)便安排田富茂(臨時雇傭工人,事故中死亡)到井下檢修水管,3~5分鐘后,田富茂中毒暈倒。任伯成(臨時雇傭工人,事故中死亡)、王文平先后下井施救,均暈倒在井下。
(二)應急救援及善后處置情況
11時40分左右,事故現場人員郭瑜感覺情況不對,立即給蘇秋才打電話(未通),便給曹鑫(蘇秋才妻哥)打電話,隨后撥120、119報警。約10分鐘后,曹鑫、蘇秋才相繼趕到現場。3~5分鐘后,文峰派出所民警、120急救車和消防大隊陸續趕到,并立即展開救援。12時09分,汾陽市委、市政府接報后,第一時間組織公安、應急、公用事業、消防、呂安危化、藍天救援、衛生等部門趕赴現場進行救援。12時50分,汾陽市應急局電話報告呂梁市應急局。13時10分,呂梁市應急局電話報告呂梁市委市政府、省應急廳。13時30分救援結束。田富茂、任伯成、王文平被送往汾陽醫院,經搶救無效死亡。
事故發生后,汾陽市公安局對相關涉事人員傳喚調查并監視居住。11月14日,汾陽市成立了以市委書記為組長的國安建設有限公司“11.12”事故處置工作領導組,下設事故善后處置組等6個工作組。11月16日3名遇難者善后工作已完畢,家屬情緒平穩。
(三)人員傷亡及經濟損失情況
1.人員傷亡情況
田富茂,男,身份證號14**************19,汾陽市石莊鎮陽泉村人(死亡)。
任伯成,男,身份證號14**************18,汾陽市三泉鎮上莊村人(死亡)。
王文平,男,身份證號14**************11,交城縣西社鎮麗灣村人(死亡)。
2.經濟損失情況
直接經濟損失:523.1萬元
三、事故原因及性質
事故調查組依法調取了有關單位的資質文件和施工資料,對事故涉及的相關人員進行了調查詢問,委托專業機構對事發污水井內有毒氣體進行鑒定,聘請相關專家進行技術原因論證,認定了事故原因及性質。
(一)直接原因
1.違規指揮、違章作業。汾陽市污水處理廠進廠干管(景區路-污水處理廠)改造工程施工項目部在對新舊檢查井作連通準備工作時,勞務人員田富茂、任伯成、王文平、郭瑜四人在對新舊檢查井進行抽水作業期間,未經批準,未落實安全防護措施的情況下,冒然進入有限空間開展維修作業,致使一人吸入井內高濃度的硫化氫(H2S)等有毒混合氣體中毒和窒息,導致事故發生。
2.盲目施救。其他作業人員救人心切,慌亂中在沒有采取任何防護措施的情況下,兩人先后冒然進入有限空間進行施救,吸入井內高濃度的硫化氫(H2S)等有毒混合氣體造成二人中毒和窒息,導致事故擴大。
(二)間接原因
1.國安建設有限公司安全生產主體責任落實不到位,管理混亂,是導致本起事故發生的重要原因。該公司安全生產組織機構不健全、制度不完善。汾陽市污水處理廠進廠干管(景區路-污水處理廠)改造工程施工項目部未落實施工作業和危險作業審批制度,未開展安全隱患排查,未制定進入有限空間作業操作規程、作業方案和有限空間作業應急處置預案,未建立應急救援組織,缺少必要的安全設施和應急救援器材裝備,未開展應急救援演練,未對作業人員進行安全教育培訓,未落實施工現場必要的職業健康保障措施,在沒有經過建設單位和監理單位的批準,擅自組織復工,開展施工現場作業,是典型的不落實安全生產主體責任行為,且不具備與經營活動相適應的安全生產知識和管理能力。
2.中經國際履行現場監理職責不到位。作為監理單位,雖然簽發了《工程暫停令》,但仍需履行職責,事故發生時,監理人員未在現場進行督促檢查。
3.汾陽市公用事業服務中心監督檢查不到位。監理單位下發了《工程暫停令》后,施工及監理人員撤離現場,施工現場長期無人值守。施工單位在未履行報批手續的情況下擅自組織施工,作為建設單位,未及時發現并予以糾正。
(三)事故性質
事故調查組認定,該起事故是一起違章指揮、違規作業、違反勞動紀律,盲目組織施救導致的一起較大生產安全責任事故。
四、對事故相關責任單位的處理建議
1.國安建設有限公司。作為施工單位,主體責任落實不到位,管理混亂,隨意更換項目經理,未將臨時用工人員納入其安全管理體系,未對新入場人員按規定進行三級安全教育培訓,對項目執行經理管理不到位,致使項目執行經理未經批準擅自組織臨時雇傭人員進場作業,未組織應急演練,未有效排查事故隱患,未及時制止和糾正違章指揮、違規作業行為。山西省住建廳已依法對國安建設有限公司安全生產許可證暫扣。
建議:根據《中華人民共和國安全生產法》第一百零九條第二項,給予國安建設有限公司處70萬元的罰款。
2.中經國際工程監理集團有限公司。作為監理單位,在本項目下達了《工程暫停令》后,監理人員巡查、檢查不到位,對施工單位擅自組織施工失察。
建議:依據《中華人民共和國安全生產法》有關規定給予監理人員相應的行政處罰。
3.汾陽市公用事業服務中心。作為建設單位,對監理單位、施工單位監督檢查力度不夠,對施工單位擅自組織施工未及時發現并制止。
建議:依據《安全生產領域違法違紀行為政紀處分暫行規定》給予有關責任人員相應的政紀處分。
4.汾陽市人民政府。對本起事故負有屬地責任。
建議:汾陽市人民政府向呂梁市人民政府作出深刻檢查。
五、對事故相關責任人的處理建議
(一)建議追究刑事責任人員
1.王文平,汾陽市污水處理廠進廠干管(景區路—污水處理廠)改造工程抽水作業現場負責人,安全意識淡薄,雇傭未經安全培訓的臨時人員進行抽水作業,抽水設備出現故障后,在未配備作業防護設備、個體防護用品的情況下,違規指揮作業人員下井作業。事故發生后,盲目組織施救,對事故發生負直接責任。
建議:追究刑事責任,因其在事故中死亡,免于追究。
2.田富茂,抽水作業現場施工人員,毫無安全意識,在未配備作業防護設備、個體防護用品的情況下下井違規作業,造成嚴重后果,對事故發生負有直接責任。
建議:追究刑事責任,因其在事故中死亡,免于追究。
(二)建議給予行政處罰人員
1.蘇秋才,國安建設有限公司員工,汾陽市污水處理廠進廠干管(景區路—污水處理廠)改造工程項目執行經理,在未辦理復工手續,未對臨時雇傭工人進行安全培訓、應急救援培訓,未通知項目經理、監理單位、建設單位擅自組織工人進行抽水作業,對事故發生負有直接管理責任。
建議:由國安建設有限公司做出相應處理。
2.賈非賢,國安建設有限公司員工,汾陽市污水處理廠進廠干管(景區路—污水處理廠)改造工程專職安全員,安全檢查不到位,對作業人員崗前安全培訓教育不到位。
建議:由國安建設有限公司做出相應處理。
3.呂培生,國安建設有限公司員工,汾陽市污水處理廠進廠干管改造工程項目經理,對項目部安全管理不嚴,技術交底不到位,安全教育、應急救援培訓不到位,應急救援設備配備不齊全,未組織應急演練。
建議:由國安建設有限公司做出相應處理。
4.楊新文,國安建設有限公司安全副總,未履行任何手續,隨意更換項目經理,對項目管理不嚴,履職不到位。
建議:由國安建設公司做出相應處理。
5.宋浩,國安建設有限公司法定代表人、總經理,主體責任落實不到位,履行安全生產管理職責不到位。
建議:依據《中華人民共和國安全生產法》第九十二條第二項,處上一年度收入40%的罰款。
6.石永強,中經國際工程監理集團有限公司員工,汾陽市污水處理廠進廠干管改造工程監理員,工程暫停期間巡查、檢查不到位,對施工單位擅自抽水作業失察。
建議:由中經國際工程監理集團有限公司做出相應處理。
7.李俊梅,中經國際工程監理集團有限公司汾陽市污水處理廠進廠干管改造工程總監,對現場監理人員的管理有缺位,對施工單位擅自抽水作業失察。
建議:由中經國際工程監理集團有限公司做出相應處理。
8.張維圓,汾陽市公用事業服務中心行業管理股股長,甲方工地代表,對監理單位、施工單位監督管理不到位,對施工單位擅自抽水作業失察。
建議:依據《安全生產領域違法違紀行為政紀處分暫行規定》給予相應的政紀處分。
9.宋啟寧,汾陽市公用事業服務中心工程股股長,建設單位項目負責人,對項目管理工作有漏洞,對施工單位擅自抽水作業失察。
建議:依據《安全生產領域違法違紀行為政紀處分暫行規定》給予相應的政紀處分。
10.申東高,汾陽市住建局黨組成員、公用事業服務中心主任,建設單位主要負責人,對汾陽市污水干管改造工程項目負責人和工地代表履職盡責情況督促不到位,負有領導責任(汾陽市委已免職)。
建議:依據《安全生產領域違法違紀行為政紀處分暫行規定》給予相應的政紀處分。
11.靳學強,汾陽市委常委、常務副市長,作為分管領導,對本起事故負有領導責任。
建議:靳學強向汾陽市政府黨組作出檢查。
六、事故防范措施及建議
各級各部門各單位要認真貫徹落實習近平總書記關于安全生產的一系列重要講話和指示批示精神,牢固樹立安全生產紅線意識和以人為本、安全發展的理念,深刻汲取事故教訓,舉一反三,認真履行安全職責,強化各項安全措施落實,全面加強安全生產工作。
(一) 國安建設有限公司要嚴格履行安全生產主體責任,建立健全全員安全生產責任制、安全生產管理制度和操作規程。制定切實可行的應急救援預案和有關專項預案,強化安全風險辨識和隱患排查治理,杜絕各類“三違”行為。要將外來施工人員納入本單位管理,強化對外來施工人員的安全生產條件和相應資質的審核,明確各自安全管理職責。要在抓好從業人員日常教育培訓的同時,重點要開展好事故警示教育工作,要對事故進行認真的剖析和學習,教育員工熟悉崗位安全風險,掌握崗位操作規程,強化警示教育效果,切實增強安全防范意識。
(二) 汾陽市公用事業服務中心要深刻汲取事故教訓,嚴格按照安全生產“黨政同責、一崗雙責,齊抓共管、失職追責”和“三個必須”的要求,強化對監管領域和行業的安全生產監督管理,對標“零事故”單位創建工作的各項具體要求,在系統內深入開展“雙控”機制建設,真正建立起安全隱患排查治理工作制度化、常態化、長效化機制,做到隱患排查治理動態歸零,切實提高安全生產監督檢查能力,確保安全生產責任落實到位。
(三) 汾陽市政府要加強對安全生產工作的領導,依法履行安全生產監督管理職責,督促各監管領域落實安全生產主體責任,及時解決安全生產管理中存在的問題,管控風險,消除隱患,進一步加大全市建筑工程、市政工程監管力度,制定嚴格的管控措施,確保不再發生類似事故,維護好全社會安全生產企穩向好的大好局面。
成都彭州市正福生豬養殖農民專業合作…
雙流東升雙江路與正通路dn1200給水管…
成都錦江“8·3”較大中毒窒息事故防…
燈塔市東方白云灰有限公司“12·25”…
宏偉區遼寧嘉禾精細化工股份有限公司…
事故調查報告(8.16)
阜新蒙古族自治縣藝紅糧食購銷有限公…
營口京華鋼鐵有限公司“2.21”氮氣窒…
習慣性錯誤操作埋隱患 制度執行不力…
河南靈寶市某金礦3?7一氧化碳中毒事故
河北普陽鋼鐵有限公司“1·4”重大煤…
煤氣事故案例
云南省昆明市東川金水礦業有限責任公…
辛集市澳森鋼鐵有限公司4.24煤氣中毒…
有限空間作業事故案例分析匯編
云南省昆明市東川金水礦業有限責任公…