2022年4月9日8時50分,二連浩特市市政小區污水提升泵站發生一起較大中毒窒息生產安全事故,造成4人死亡,1人受傷。直接經濟損失502萬元。
事故發生后,自治區黨委、政府高度重視,自治區黨委副書記、自治區主席王莉霞同志做出重要批示,要求盡快成立事故調查組,查明事故原因,做好傷員救治和死者善后工作。錫盟委書記么永波,錫盟委副書記、盟長羅青對事故調查、善后處理提出具體要求。盟委委員、常務副盟長張怡對事故處置幾次調度。副盟長楊立、盟直有關部門的負責同志第一時間趕赴現場對事故處置和善后事宜進行了安排部署。
4月11日,內蒙古自治區安委會對該起事故掛牌督辦。
參照《中華人民共和國安全生產法》、《生產安全事故報告和調查處理條例》(國務院令第493號)等有關法律法規,4月10日,錫林郭勒盟行政公署成立事故調查組,盟應急管理局、住建局、公安局、人社局、工會、消防救援支隊和二連浩特市人民政府有關人員參加,并邀請盟紀委監委及相關領域技術專家參與事故調查。
事故調查組按照“四不放過”和“科學嚴謹、依法依規、實事求是、注重實效”的原則,通過勘查現場、調閱資料、調查取證、問詢談話和專家論證,查明了事故發生的時間、地點、經過、原因、人員傷亡和直接經濟損失等情況,確定了事故性質,認定了有關單位及人員的責任,對事故單位及其有關人員提出了處理建議,并針對事故發生原因及暴露出的突出問題提出了事故防范措施建議。
一、工程項目及事故相關單位概況
(一)二連浩特市市政事業發展中心
二連浩特市市政事業發展中心,成立于1977年,原名為二連浩特市市政工程隊。統一社會信用代碼為:12152501460785179U;法定代表人:吉雅圖;住所:二連浩特市恐龍東大街0393號;業務范圍:負責市政管理的道路新建、維護和擴建工程;負責市政管理的排水管道、井蓋及井位設施、污水提升泵站、雨水提升泵站等排水設施的清疏、排澇、建設、維護、管理工作;負責全市路燈等照明設施的建設、維護、管理工作;負責擬定城區道路、排水、路燈等市政設施建設項目年度計劃和中長期發展計劃;負責城區道路、排水、路燈等市政設施的分布情況和數據統計工作;完成市住房和城鄉建設局交辦的其他工作任務。1977年12月30日二連浩特市編制委員會下發“五定”方案,確定該單位為相當科級建制的事業單位,實行全額撥款;2013年12月20日更名為二連浩特市市政公用設施管理局;2015年11月26日批復單位為公益一類事業單位;2021年3月22日更名為二連浩特市市政事業發展中心。目前核定事業編制13名,核定科級領導職數3名(1正2副)。
(二)二連浩特市市政小區污水提升泵站
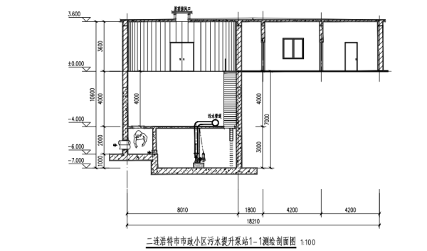
二連浩特市市政小區污水提升泵站,于1995年投入使用,位于二連浩特市市政小區院內南部,污水提升泵站占地面積90平方米,泵池占地面積50平方米,容積350立方米,泵池結構為鋼筋混凝土,泵池為直徑8.01米、高度7米的圓柱形,在-4米處設有作業平臺并在泵池中間設有污水池隔斷墻,泵池-4米以下分割為2個相等的污水池和1個分配井,-4米作業平臺為混凝土結構。作業平臺西側-4米至-6米處設有分配井,其結構尺寸為1.8m*1.8m*2m。分水池頂部用鋼板封閉,防止人員墜落。-4米作業平臺中心偏東側設有4處水泵吊裝口,并配有4臺抽水泵,每臺功率15千瓦,每小時出水120立方米,東側設有2處80cm*80cm正方形人孔。

二連浩特市市政小區污水提升泵站測繪平面示意圖

二連浩特市市政小區測繪剖面示意圖
(三)污水清淤項目概況
按照歷年泵站清淤工作情況,市政小區泵站一般每年4月或10月份清掏1次。市政小區污水提升泵站清淤事項具體工作由排水組組長李敏負責組織安排。上一次清淤工作是2021年10月13日,因疫情原因只清掏了1天,未完成清淤任務。泵站每次清淤人數大約6人,清淤費用按工日計算,2021年費用大約為300元/工日/人次,市政小區泵站具體用工人數、工日和費用由李敏負責核對。
二、事故主要經過及應急救援情況
(一)事故主要經過
4月6日,二連浩特市市政事業發展中心排水組組長李敏以事業發展中心名義與何廷英、趙生虎、孫志峰口頭約定清淤任務,趙生虎、孫志峰于4月8日又找到白占海、王利兵、王軍共6人共同對市政小區污水提升泵站進行清淤作業,按照每人每天300元的工資進行支付。4月8日,李敏請示二連浩特市市政事業發展中心主任吉雅圖和副主任孫曉東同意后,準備近期開展清淤作業工作,吉雅圖、孫曉東口頭叮囑李敏在二人未到場之前,不能施工。下午3時,孫志峰和趙生虎到達泵站,打開大門并準備垃圾箱,為4月9日清淤作業做準備;4月9日7時59分,趙生虎、白占海、王利兵先后到達現場后,在泵房西側的車庫準備作業工具。8時21分,白占海在未向李敏請示并未佩戴安全防護用品的情況下,進入泵站-4米平臺檢查泵池水位;王利兵、趙生虎和何廷英在泵站門口準備清掏工具;8時25分,趙生虎、王利兵進入-4米平臺,何廷英在泵站內西側欄桿處觀看池內人員作業;8時26分,孫志峰和王軍到達作業現場。8時35分,孫志峰穿好作業服(未佩戴安全防護用品)進入-4米平臺;8時44分,王軍進入泵站-4米平臺,趙生虎、白占海等5人合力打開分水池蓋板,并觀察分水池內水位。隨后白占海、王利兵進入-6米分水池用棉被封堵分水池地面南側分水口,剩余3人圍繞分水池口觀察2人作業情況。當白占海用腳把棉被踩到分水口處的過程中,王利兵感覺身體異樣,就從梯子往上爬,人明顯發軟,攀爬費力,爬到半截處,趙生虎、孫志峰、王軍看到王利兵身體狀態不適,3人合力把王利兵拉到-4米平臺分水池入口旁,王軍、趙生虎相繼倒下,當時白占海在分水池內西南角靠墻邊已失去意識。孫志峰出現頭暈原地蹲下,隨后屏住呼吸爬至泵站地面,何廷英隨后出去求救,8時52分撥打120急救電話;8時56分,孫志峰從泵房出來撥打119救援電話。
(二)事故報告情況
2022年4月9日8時 50分,二連浩特市市政小區污水提升泵站發生事故。9時01分,現場工人孫志峰向二連浩特市市政事業發展中心主任吉雅圖報告事故。
4月9日9時12分,二連浩特市消防救援大隊向二連浩特市應急管理局報告事故情況。9時16分,二連浩特市應急管理局向二連浩特市政府報告事故情況。
4月9日10時06分,二連浩特市應急管理局向錫林郭勒盟應急管理局報告事故。4月9日11時42分,錫林郭勒盟應急管理局將事故情況上報應急廳應急指揮調度中心。
4月9日10時55分,二連浩特市總值班室向行署總值班室報送事故發生、處置情況。
(三)應急處置情況
4月9日8時56分,二連浩特市消防救援大隊指揮中心接到報警后,立即出動3車20人趕赴現場。到場后二連浩特市消防救援大隊救援人員首先在污水處理泵站門口內利用有毒氣體檢測儀檢測硫化氫濃度為149ppm,待數值穩定后顯示硫化氫濃度為137ppm。隨后攻堅一組6人佩戴個人防護裝備進入內部實施救援,攻堅二組4人配合施救,緊急救助小組4人負責應對突發狀況,警戒人員2人負責外圍警戒,安全員1人負責監測內部施救人員的空氣呼吸器壓力及身體狀況。9時10分左右,救出第一名被困人員,9時29分陸續將4名被困人員全部救出,移交120救治。二連浩特市醫院120救護人員于9時10分左右到達現場進行檢查搶救,4人均無自主呼吸,瞳孔散大并固定,頸動脈無搏動,進行心電圖檢查,均為直線。經反復檢查確認,于9時40分宣告無生命體征,死亡。8時58分,二連浩特市公安局110指揮中心接到報警,請求出警幫助。情指中心在接到報警后,立即報告公安局主要領導,指派東城派出所、刑偵大隊、巡特警大隊前往現場處置,調取錄像監控,做好接警登記以及分析研判工作。東城派出所立即對市政小區現場進行封鎖,摸排走訪周邊群眾,了解現場情況,維護現場秩序。刑偵大隊立即開展現場勘驗,法醫進行尸檢。并配合120急救部門將孫志峰送至醫院進行觀察救治,將死者遺體轉運到殯儀館,做好善后工作。
三、事故直接經濟損失和傷亡人員情況
事故造成4人死亡,1人受傷。直接經濟損失人民幣502萬元。
傷亡人員信息表
| 姓名 | 性別 | 民族 | 身份證號 | 住址 | 傷亡情況 |
| 趙生虎 | 男 | 漢族 | 當場死亡 | ||
| 王?軍 | 男 | 漢族 | 當場死亡 | ||
| 白占海 | 男 | 漢族 | 當場死亡 | ||
| 王利兵 | 男 | 漢族 | 當場死亡 | ||
| 孫志峰 | 男 | 漢族 | 受傷 |
四、事故原因和性質
(一)直接原因
2022年4月9日,趙生虎等6名清掏作業人員在二連浩特市市政小區污水提升泵站進行清掏作業時,均未佩戴安全防護用品,在未經項目單位許可和作業前未進行氣體檢測的情況下進入污水提升泵站有限空間作業,導致吸入硫化氫、氨氣等氣體中毒,造成4人死亡,1人受傷。
(二)間接原因
1.二連浩特市市政事業發展中心違規將市政小區污水提升泵站清淤事項口頭委托給不具備安全生產必要知識和能力的個人進行作業,對施工過程疏于管理,未按要求開展有限空間作業安全管理制度和操作規程教育和培訓、未開展風險辨識和隱患排查治理工作、未有效履行安全生產管理職責。
2.二連浩特市住房和城鄉建設局未能認真履行行業主管部門安全生產職責,安全生產法律法規落實不到位,對市政事業發展中心的安全生產工作監督管理缺位,風險辨識和事故隱患排查不徹底。
3.二連浩特市政府落實領導干部安全生產責任不到位,對部分行業主管部門安全生產監督檢查工作部署指導不全面、不徹底,特別是對非經營性事業單位安全生產教育和管理重視不夠。未有效貫徹落實2022年度春季安全生產風險隱患大排查大整治工作方案,督促有關行業主管部門開展安全風險隱患排查治理不到位。
(三)事故性質
經調查認定,二連浩特市市政小區污水提升泵站“4·9”中毒窒息事故是一起較大生產安全責任事故。
五、對事故責任人員和責任單位的處理建議
(一)?建議免于追責人員(共4人)
趙生虎、白占海、王軍、王利兵4人屬于二連浩特市市政事業發展中心臨時雇用的清淤作業人員,在未佩戴必要的勞動防護用品的情況下進入污水提升泵站有限空間作業,導致事故發生,對事故的發生負有直接責任。鑒于4人在事故中死亡,建議免于責任追究。
(二)司法機關處理人員(共1人)
(略)
(三)建議給予追責問責的人員
(略)
(四)對事故有關單位的處理建議
1.建議責成二連浩特市市政事業發展中心向二連浩特市住房和城鄉建設局作出深刻檢查;二連浩特市住房和城鄉建設局對二連浩特市市政事業發展中心在全市住建系統范圍內通報批評。
2.建議責成二連浩特市住房和城鄉建設局向二連浩特市政府作出深刻檢查;二連浩特市政府對二連浩特市住房和城鄉建設局在全市范圍內通報批評。
3.建議責成二連浩特市委、市政府向盟委作出深刻檢查。
六、事故防范措施及建議
(一)層層壓實各級安全生產監管責任。各級黨委政府要切實增強安全發展理念和安全紅線意識,按照“黨政同責、一崗雙責、齊抓共管、失職追責”的要求,全面貫徹落實安全生產“十五條硬措施”,進一步健全完善安全生產責任體系。堅決落實《錫林郭勒盟履職盡責和社會安全穩定風險排查整治攻堅行動常態化長效化推進工作方案》,有效貫徹安全生產法律法規及盟委、行署對安全生產工作的部署要求;負有安全生產監督管理職責的部門要按照“管行業必須管安全、管業務必須管安全、管生產經營必須管安全”的原則,嚴格履行本行業領域的安全監管責任,特別是加強機關直屬事業單位安全生產工作責任落實,深刻吸取事故教訓,舉一反三,深入分析本地區本行業領域安全生產形勢,抓住安全監管工作的重點、難點,進一步加大安全監管力度,對重點部位、有限空間、安全設施、微小工程存在的漏洞、盲區、死角等問題進行檢查,健全完善有限空間管控臺賬,切實消除各類事故隱患。
(二)加強市政項目安全管理。二連浩特市住房和城鄉建設局和二連浩特市市政事業發展中心要進一步規范市政項目工程承發包行為,嚴禁將生產經營項目、場所、設備發包給不具備安全生產條件或者相應資質的單位和個人,堅決杜絕無資質、掛靠或借用資質承攬工程的行為。參建各方要進一步規范并履行施工項目及雇傭人員、勞務派遣人員和靈活用工人員的合同簽訂工作,在合同中必須包括安全生產管理的相關條款,或者簽訂專門的安全管理協議。
(三)強化安全教育和崗前培訓工作。持續加強對有限空間作業安全培訓教育,督促各部門和生產經營單位認真落實崗前培訓,進一步完善應急預案,加大對有限空間作業安全的宣貫力度,緊扣重點行業、企業、部位、崗位特點和風險特性,有針對性地定期開展有限空間作業事故應急救援演練,使從業人員熟悉并掌握有限空間作業要求,切實提高安全意識和自救互救能力。不斷加強對相關人員安全知識和技能培訓,要抓現場、抓細節,完善有限空間審批制度和崗位安全操作規程并嚴格執行,加強有限空間辨識建檔、作業審批、現場監護、器材配備等制度措施落實。
(四)提高有限空間作業風險辨識和隱患排查能力。持續深入開展有限空間作業安全專項整治。對各行業的有限空間進行全面排查,形成位置明確且動態更新的臺賬清單,做到底數清、情況明、管控實;加大《有限空間作業安全指導手冊》宣傳力度,結合各行業領域工作實際,強化執法檢查工作,嚴查企業有限空間作業管理制度不落實、作業審批管理不嚴格、作業場所風險辨識不全面、從業人員教育培訓不到位等突出問題,督促各部門和生產經營單位不斷完善有限空間作業規章制度和操作規程并嚴格執行。
二連浩特市市政小區污水提升泵站“4·9”
較大中毒窒息事故調查組
2022年7月4日
重慶天原化工有限公司“7?8”一般中…
邛崍市明均養殖場“5·28”一般中毒…
成都彭州市正福生豬養殖農民專業合作…
成都彭州市正福生豬養殖農民專業合作…
雙流東升雙江路與正通路dn1200給水管…
成都錦江“8·3”較大中毒窒息事故防…
燈塔市東方白云灰有限公司“12·25”…
宏偉區遼寧嘉禾精細化工股份有限公司…
習慣性錯誤操作埋隱患 制度執行不力…
河南靈寶市某金礦3?7一氧化碳中毒事故
河北普陽鋼鐵有限公司“1·4”重大煤…
煤氣事故案例
云南省昆明市東川金水礦業有限責任公…
辛集市澳森鋼鐵有限公司4.24煤氣中毒…
有限空間作業事故案例分析匯編
云南省昆明市東川金水礦業有限責任公…