交底內容:
1、 作業條件:管溝定位放線完畢,沒有妨礙管溝基礎施工的障礙物。
2、 施工準備:
2.1人員準備:鋼筋工10人,木工10人,砼工5人,小工8人
2.2機具準備:挖掘機、鐵鍬、羊鎬、打夯機、振搗棒、刮杠、抹子
2.3材料準備:螺桿、鋼管、方木、木膠板
3、 施工內容:
管溝布置見管溝平面布置圖。
管溝為Ⅱ管溝,管溝詳圖見國標02J331地溝及蓋板圖集P41,P15頁。
3.1管溝開挖:土方施工
先根據管溝平面布置圖用白灰畫出開挖上口線,開挖邊從墊層邊外擴200mm,基礎基坑采用機械開挖,人工修整,基礎立面鐵鏟修平,底面素土用打夯機夯實兩遍,壓實系數不得小于0.94。尤其注意底角底邊處。
3.2鋼筋砼施工
每20米為一個施工澆筑段。鋼筋規格及做法按國標02J331地溝及蓋板圖集P15頁進行加工下料,鋼筋加工好后,按02J331圖集要求進行插筋綁扎。吊環加工不得采用冷加工鋼筋。砼澆筑分三次完成先墊層,后底板,最后為墻體。砼標號墊層為C15,其他均為C25,墻體采用現澆方式施工,管溝蓋板為C25預制鋼筋砼蓋板,采用1:2水泥砂漿勾縫。做法尺寸配筋詳見國標02J331地溝及蓋板圖集P41。蓋板采用方木木膠板定型制作,制作場地85-86#樓東邊空地上。材料到位后立即進行預制。蓋板加工前板底整平夯實,鋪設薄膜,進行砼澆注時采用振搗棒平行振搗,后應進行澆水養護,保證砼質量。管溝蓋板必須養護一周后才能使用。通氣孔必須預埋好后在進行澆筑砼,接縫處采用止水帶塞縫。
3.3模板施工
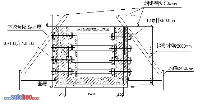
模板采用15mm厚木膠合板,管溝外墻用鋼管和50mm×100mm方木作為龍骨,卡扣進行加固。兩內墻中間用方木作為頂桿撐,上下共四道,橫向間距為1米。螺干豎向間距同方木頂桿撐,橫向間距為0.5米。詳見下圖:

基坑水平支撐拆除安全專項方案
預制場模板安裝與拆除安全技術交底
門式鋼管腳手架搭設完成后混凝土澆搗…
吊腳手架搭設技術交底
鋁合金門窗安裝技術交底
涂色鍍鋅鋼板門窗安裝技術交底
硬PVC 622 塑料門窗安裝技術交底
裝飾木工施工技術交底
混凝土施工技術交底
磚砌體施工技術交底
外腳手架拆除安全技術交底
人工挖孔樁安全技術交底
施工現場用電安全技術交底
土方開挖工程技術交底
建筑施工安全技術交底匯總
高空作業施工安全技術交底